
Na predaj komerčná budova v centre mesta Spišská Stará Ves so skvelým investičným potenciálom
- 360 m2
- Spišská Stará Ves
Moderný maklér ponúka na predaj novostavbu haly so všetkými IS v priemyselnej časti mesta Šamorín na ulici Vicenzy. Celkovú plochu pozemku a haly o veľkosti 600 m2 bude vlastniť budúci majiteľ vo výlučnom vlastníctve 1/1 a príjazdová cesta a okolité zelené plochy o rozlohe 627 m2 budú rozdelené do podielového spoluvlastníctva v pomere 1/3.
Objekt:
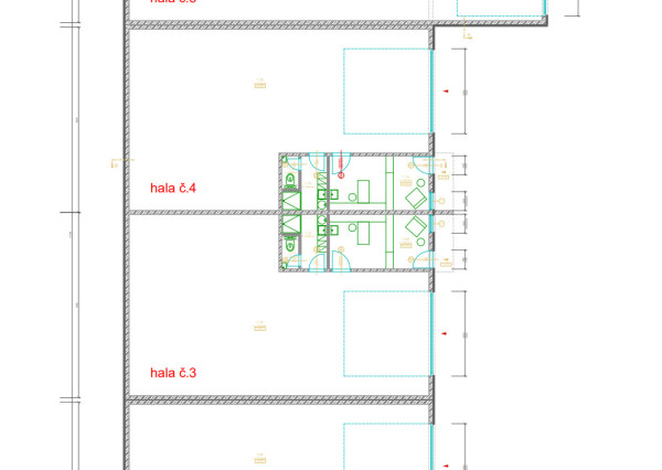
Zastavaná plocha haly: 328 m2
Úžitková plocha výrobnej časti celej haly: 317,6 m2 (každá časť haly 158,8 m2)
Administratívna časť: 45,2 m2 (každá časť haly 22,6m2)
Svetlá výška haly: 6,8 m
Prislúchajúca spevnená plocha k hale vo výlučnom vlastníctve 1/1: 272 m2
Pozemok v podielovom spoluvlastníctve 1/3: 627 m2
Otvor brány: 4,5 x 4,5 m
IS: mestská voda, elektrina, kanalizácia (každá časť haly má samostatné meranie), prípojka plynu a internetu na hranici pozemku, odvod dažďových vôd zo strechy do vsakov, odvod dažďových vôd zo spevnených plôch je riešené cez ORL (odlučovač ropných látok)
Technický stav:
Výstavba haly sa začala v r. 2024. Podlaha haly je zo železobetónovej základovej dosky a vrchná vrstva lešteného pancierového betónu. Konštrukcia haly je vyrobená zo železobetónu a ponúka tak vysokú pevnosť a odolnosť a taktiež perfektnú zvukovú a tepelnú izoláciu. Dokončenie haly sa vie čiastočne prispôsobiť požiadavkám kupujúceho.
Lokalita:
Nehnuteľnosť sa nachádza v priemyselnej časti na začiatku mesta Šamorín. Mesto má veľmi dobrú dopravnú polohu, hlavne vďaka výbornému napojeniu na diaľnicu R7 iba 2km od haly. V tejto časti sa taktiež nachádza otočná plocha pre kamióny a kantína pre zamestnancov priemyselnej zóny. Čerpacia stanica ORLEN sa nachádza hneď pred príjazdovou cestou do tejto časti.
Názor makléra:
Najväčšou výhodou je kvalitné prevedenie stavby tejto haly a taktiež jej poloha hneď na začiatku mesta Šamorín iba zopár minút od vjazdu a výjazdu na diaľnicu R7. Pozemok je napojený na všetky IS a budúci majiteľ tak nemusí riešiť zdĺhavé a finančne nákladné procesy s natiahnutím IS. Vzhľadom na to, že každá jedna časť haly má samostatné meranie energií a nový majiteľ by chcel napríklad 1. časť haly pre vlastné podnikanie a druhú časť haly by dal do prenájmu, tak nebudú vznikať žiadne nezrovnalosti ohľadom prípadných nedoplatkov a všetkých komplikácii, ktoré vznikajú ak máva viac firiem spoločné meranie energií.
Cena:
622.000€ (cena bez DPH)
V cene je zahrnuté:
Provízia realitnej kancelárie a právny servis – vypracovanie rezervačnej zmluvy a kúpnej zmluvy s návrhom na vklad, poplatok za vklad do katastra nehnuteľností a overenie podpisov u notára. V prípade záujmu zabezpečíme rýchle a nezávislé poradenstvo v oblasti financovania kúpy a získanie najvýhodnejších podmienok pre hypotekárny úver podľa podmienok kupujúceho. Všetky ďalšie informácie Vám rád poskytnem pri osobnej prehliadke alebo formou virtuálnej prehliadky.
Erik Vávra – 0944 523 833
Informácie o nehnuteľnosti sú uverejnené so súhlasom a vedomím majiteľa.
Ulica: | - |
---|---|
Obec: | Senec |
Okres: | Senec |
Kraj: | Bratislavský kraj |
Druh: | Objekty |
Typ: | Predaj |
Typ objektu: | Polyfunkčná budova |