Používame cookies

Súbory cookie a ďalšie technológie sledovania používame na zlepšenie vášho zážitku z prehliadania našich webových stránok, na to, aby sme vám zobrazovali prispôsobený obsah a cielené reklamy, na analýzu návštevnosti našich webových stránok a na pochopenie toho, odkiaľ naši návštevníci prichádzajú. Viac info

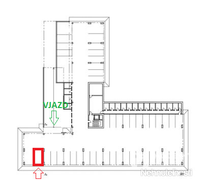
Na prenájom garážové státie Bratislava – Záhorská Bystrica

Popis nehnuteľnosti

Zdieľať na Facebooku

Moderný maklér ponúka na prenájom širšie garážové parkovacie státie v mestskej časti Záhorská Bystrica na Bratislavskej ulici. Parkovanie sa nachádza v bezpečnej podzemnej garáži s kapacitou približne 50 vozidiel. Samozrejmosťou je kamerový systém a vstup cez automatickú bránu, čo zabezpečuje komfort aj vyššiu mieru bezpečnosti pre vaše vozidlo.

Garážové státie:

Rozmer: cca 2,7 × 5,1 m

Cena:

89 € pri úhrade ročne vopred (1 070 €)
98 € pri úhrade polročne vopred (590 €)
110 € pri úhrade štvrťročne vopred (330 €)

alebo 120 € pri mesačnej úhrade vopred.

Cena je konečná, vrátane všetkých energií a poplatkov.
Cena mesačne (na základe nájomnej zmluvy a vystavenej faktury, majiteľ nie je platcom DPH)
Vratná zábezpeka za ovládač(e) je 100 €.

V cene je zahrnuté:

Provízia realitnej kancelárie a právny servis – vypracovanie Nájomnej zmluvy a Preberacieho protokolu. Všetky ďalšie informácie Vám radi poskytnem pri osobnej prehliadke alebo telefonicky.
Mgr. Zuzana Juskaninová – 0918 099 795

Informácie o nehnuteľnosti sú zverejnené so súhlasom a vedomím vlastníka.

----------------------------------------------------------------------------------------------------------------

Modern Agent offers an extra-wide garage parking space for rent in the Záhorská Bystrica district of Bratislava, located on Bratislavská Street. The parking spot is situated in a secure underground garage with a capacity of approximately 50 vehicles. The facility features a CCTV camera system and an automatic entrance gate, ensuring both convenience and a high level of security for your vehicle.

Parking Space Details:

Dimensions: Approx. 2.7 × 5.1 m

Rental Price Options:

We offer flexible payment plans to suit your needs. The price is final, including all utilities and fees:

€89 / month – with annual payment in advance (€1,070 total)
€98 / month – with semi-annual payment in advance (€590 total)
€110 / month – with quarterly payment in advance (€330 total)
€120 / month – with monthly payment in advance

Refundable Deposit: A €100 deposit is required for the remote control(s).

Included in the Price:

Real estate agency commission.
Complete legal service, including the preparation of the Lease Agreement and the Handover Protocol.
For any further information or to schedule a viewing, please feel free to contact me by phone.
Mgr. Zuzana Juskaninová Phone: +421 918 099 795

Property information is published with the consent and knowledge of the owner.

Vlastnosti

Status:
aktívne
Vlastníctvo:
osobné
Úžitková plocha:
13.77 m2
Zastavaná plocha:
13.77 m2
Stav:
novostavba
89 €/mesiac
Ulica: Bratislavská
Obec: Bratislava-Záhorská Bystrica
Okres: Bratislava IV
Kraj: Bratislavský kraj
Druh: Objekty
Typ: Prenájom
Typ objektu: Garáže a parkovacie miesta

Radi Vám poradíme

Podobné nehnuteľnosti