Používame cookies

Súbory cookie a ďalšie technológie sledovania používame na zlepšenie vášho zážitku z prehliadania našich webových stránok, na to, aby sme vám zobrazovali prispôsobený obsah a cielené reklamy, na analýzu návštevnosti našich webových stránok a na pochopenie toho, odkiaľ naši návštevníci prichádzajú. Viac info

Na predaj zariadený 3-izbový byt s parkingom v Liptovskom Mikuláši

Popis nehnuteľnosti

Zdieľať na Facebooku

Moderný maklér ponúka na predaj 3-izbový byt v novostavbe bytového domu na ulici B. Lichardusa, v obľúbenom rezidenčnom projekte Nová Palúdzka v Liptovskom Mikuláši. Byt sa nachádza na 3. nadzemnom podlaží bytového domu s výťahom. Ide o modernú novostavbu s balkónom a vlastným parkovacím státím, ktorá ponúka komfortné a praktické bývanie. Dispozícia bytu je funkčne riešená a poskytuje ideálnu kombináciu pohodlia a efektívne využitého priestoru. Nehnuteľnosť je pripravená na okamžité nasťahovanie bez potreby ďalších investícií, čo z nej robí výbornú voľbu pre rodinné bývanie aj ako investičnú príležitosť.

Byt:

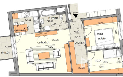
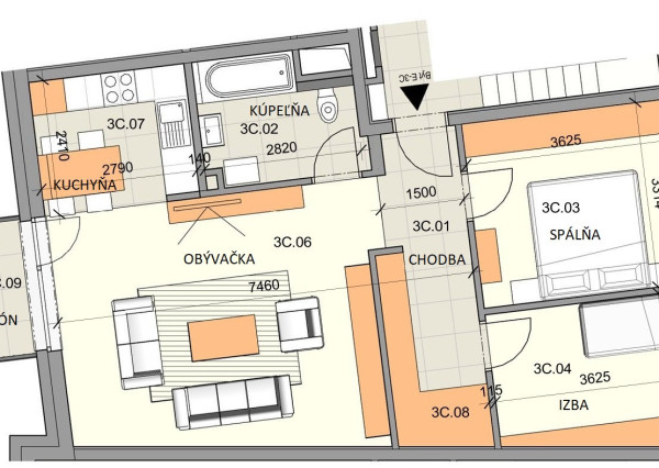
Úžitková plocha: 68,7 m²
Balkón : 3,4 m²
Pivnica: 6,6 m²
Celková plocha: 78,7 m²

Dispozícia:

Byt pozostáva zo vstupnej predsiene so vstavanými skriňami, obývacej izby prepojenej s kuchyňou, dvoch samostatných izieb, kúpeľne s vaňou a WC a balkóna s prístupom z obývacej izby. K bytu prislúcha pivnica umiestnená v suteréne bytového domu. Denná časť bytu je orientovaná na západ, spálne na východ. Byt je tak prirodzene presvetlený počas celého dňa a zároveň si zachováva príjemnú atmosféru.

Vybavenie: 

Nehnuteľnosť sa predáva zariadená. Je vybavená modernou kuchynskou linkou so vstavanými spotrebičmi, medzi ktoré patrí varná doska, rúra, mikrovlnná rúra a umývačka riadu, čo zabezpečuje komfortné a plnohodnotné využívanie kuchyne.

Technický stav:

Byt sa nachádza v novostavbe bytového domu kolaudovaného v roku 2021. Komfort bývania zabezpečuje podlahové teplovodné vykurovanie s vlastným meraním a lokálne rekuperačné jednotky v obytných miestnostiach. Plastové okná s izolačným trojsklom sú doplnené exteriérovými žalúziami. Samozrejmosťou sú bezpečnostné vstupné dvere.

Lokalita:

Ulica B. Lichardusa v časti Nová Palúdzka patrí medzi vyhľadávané rezidenčné lokality s dobrou dostupnosťou do centra mesta a kompletnou občianskou vybavenosťou v pešej dostupnosti. Vďaka polohe v regióne Liptova je byt vhodný nielen na trvalé bývanie, ale aj ako investícia na dlhodobý alebo rekreačný prenájom.

Názor makléra:

Byt je ideálnou voľbou pre rodinu, ktorá chce bývať bez rekonštrukcie, pár hľadajúci moderný a hotový priestor, alebo ako investícia na prenájom. Veľkým benefitom je moderná novostavba a praktická dispozícia. Ak hľadáte bývanie, ktoré je pripravené bez dodatočných investícií, tento byt patrí medzi príležitosti, ktoré sa na trhu objavujú len občas. Veľkým benefitom je vlastné parkovacie státie vedľa vstupu do bytového domu, ktoré zabezpečuje maximálne pohodlie pri každodennom príchode domov.

Cena:

225.000 € (vrátane zariadenia a parkovacieho miesta)

V cene je zahrnuté:

Provízia realitnej kancelárie a právny servis – vypracovanie rezervačnej zmluvy a kúpnej zmluvy s návrhom na vklad, poplatok za vklad do katastra nehnuteľností a overenie podpisov u notára. V prípade záujmu zabezpečíme rýchle a nezávislé poradenstvo v oblasti financovania kúpy a získanie najvýhodnejších podmienok pre hypotekárny úver podľa podmienok kupujúceho. Všetky ďalšie informácie Vám radi poskytneme pri osobnej prehliadke alebo telefonicky.
Ing. Eva Pavliková – +421 907 948 159

Informácie o nehnuteľnosti sú zverejnené so súhlasom a vedomím vlastníka.

Vlastnosti

Status:
aktívne
Vlastníctvo:
osobné
Úžitková plocha:
68.7 m2
Zastavaná plocha:
68.7 m2
Stav:
úplne prerobený
Balkón:
áno
Pivnica:
áno
Pozícia:
vyššie poschodie
Poschodie:
3
Plocha balkóna:
3.4 m2
Počet balkónov:
1
Pivnica plocha:
6.6 m2
Počet pivníc:
1
Inžinierske siete:
áno

Hypotekárna kalkulačka

225 000 €
Ulica: B.Lichardusa
Obec: Liptovský Mikuláš
Okres: Liptovský Mikuláš
Kraj: Žilinský kraj
Druh: Byty
Typ: Predaj
Typ bytu: 3-izbový byt

Radi Vám poradíme

Podobné nehnuteľnosti