Používame cookies

Súbory cookie a ďalšie technológie sledovania používame na zlepšenie vášho zážitku z prehliadania našich webových stránok, na to, aby sme vám zobrazovali prispôsobený obsah a cielené reklamy, na analýzu návštevnosti našich webových stránok a na pochopenie toho, odkiaľ naši návštevníci prichádzajú. Viac info

Na predaj obchodné priestory v Bánovciach nad Bebravou

Popis nehnuteľnosti

Zdieľať na Facebooku

Moderný maklér ponúka na predaj obchodné/ skladovacie priestory s garážami v Bánovciach nad Bebravou. Objekty sú v základnom stave, ideálne pre podnikanie alebo skladovanie s možnosťou vlastného vybavenia podľa vašich potrieb.

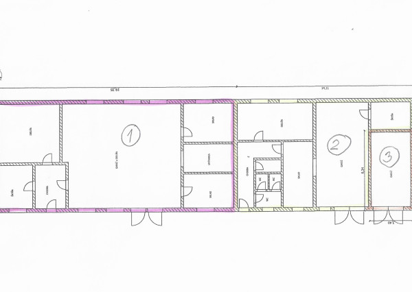
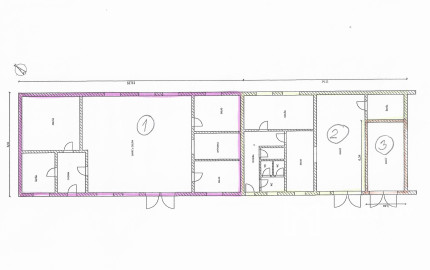
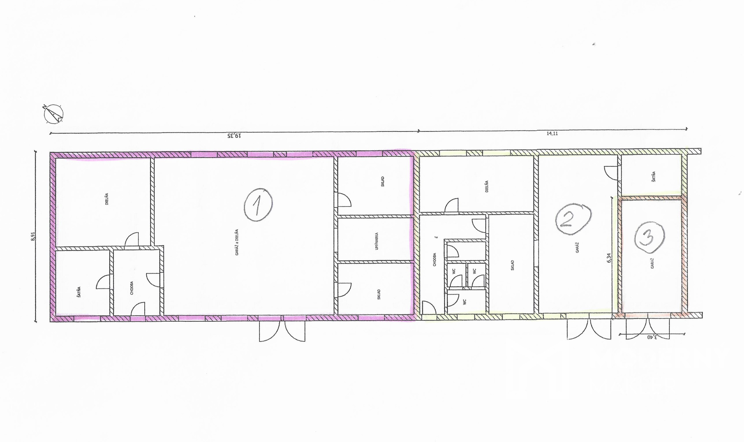
Obchodné/ skladovacie priestory a garáže:

Obchodný skladovací priestor č.1 - výmera 174m2 + pozemok/ spevnené plochy196m2
Obchodný skladovací priestor č.2 - výmera 135m2 + pozemok/ spevnené plochy 106m2
Garáž č. 3 - výmera 22m2 + pozemok/ spevnené plochy 26m2
Garáž č. 4 - výmera 30m2 + pozemok/ spevnené plochy 25m2
Garáž č. 5 - výmera 30m2 + pozemok/ spevnené plochy 25m2
Garáž č. 6 - výmera 30m2 + pozemok/ spevnené plochy 25m2
Garáž č. 7 - výmera 30m2 + pozemok/ spevnené plochy 25m2
Garáž č. 8 - výmera 30m2 + pozemok/ spevnené plochy 25m2
Obchodný skladovací priestor č.9 - výmera 125m2 + pozemok/ spevnené plochy 200m2

Vybavenie:

Tieto obchodné/ skladovacie priestory sa predávajú v pôvodnom stave bez akýchkoľvek úprav, čo poskytuje budúcim vlastníkom flexibilitu pri ich vlastnom vybavení podľa špecifických potrieb podnikania alebo skladovania.

Lokalita:

Nehnuteľnosť sa nachádza v strategickej polohe s vynikajúcou dopravnou dostupnosťou do centra mesta a priamym napojením na hlavný dopravný ťah spájajúci Bánovce nad Bebravou s Prievidzou, Partizánskym a Trenčínom. Lokalita ponúka pokojné prostredie v tichom prostredí, pričom sa nachádza v súkromnom areáli, čo zaručuje väčšie súkromie a bezpečnosť. Pre jednotlivé priestory bude zriadená samostatná elektrická prípojka, zatiaľ čo prípojky vody a plynu sa nachádzajú v blízkosti objektu, čo výrazne uľahčuje a zefektívňuje pripojenie všetkých potrebných inžinierskych sietí.

Názor makléra:

Tieto nehnuteľnosti v Bánovciach nad Bebravou predstavujú výnimočnú investičnú príležitosť pre podnikateľov hľadajúcich obchodné a skladovacie priestory. Kombinácia obchodných priestorov, skladových kapacít a garáží vytvára univerzálne riešenie pre rôzne typy podnikania. Lokácia v Bánovciach nad Bebravou ponúka strategickú polohu s dobrým dopravným spojením, čo je kľúčové pre efektívny chod obchodnej činnosti. Skladovacie priestory poskytujú dostatok kapacity pre uskladnenie tovaru, zatiaľ čo garáže umožňujú bezpečné parkovanie firemných vozidiel alebo dodatočné skladovanie. Táto nehnuteľnosť je ideálna pre malé až stredné podniky, ktoré potrebujú flexibilné priestory kombinujúce predaj, skladovanie a logistiku na jednom mieste. Výhodou je možnosť prispôsobenia priestorov konkrétnym potrebám podnikania a potenciál pre budúci rozvoj obchodných aktivít.

Cena:

Informácie o cene v RK

V cene je zahrnuté:

Provízia realitnej kancelárie a právny servis – vypracovanie rezervačnej zmluvy a kúpnej zmluvy s návrhom na vklad, poplatok za vklad do katastra nehnuteľností a overenie podpisov u notára. V prípade záujmu zabezpečíme rýchle a nezávislé poradenstvo v oblasti financovania kúpy a získanie najvýhodnejších podmienok pre hypotekárny úver podľa podmienok kupujúceho. Všetky ďalšie informácie Vám radi poskytneme pri osobnej prehliadke alebo telefonicky.
Lenka Puterková – 0949 171 917

Informácie o nehnuteľnosti sú zverejnené so súhlasom a vedomím vlastníka.

Vlastnosti

Status:
aktívne
Vlastníctvo:
osobné
Úžitková plocha:
176 m2
Zastavaná plocha:
176 m2
Stav:
pôvodný stav
Celková plocha:
176 m2
Cena v RK
Obec: Bánovce nad Bebravou
Okres: Bánovce nad Bebravou
Kraj: Trenčiansky kraj
Druh: Priestory
Typ: Predaj
Typ objektu: Obchodné priestory

Radi Vám poradíme

Podobné nehnuteľnosti